Fügung

Hybridkonstruktion
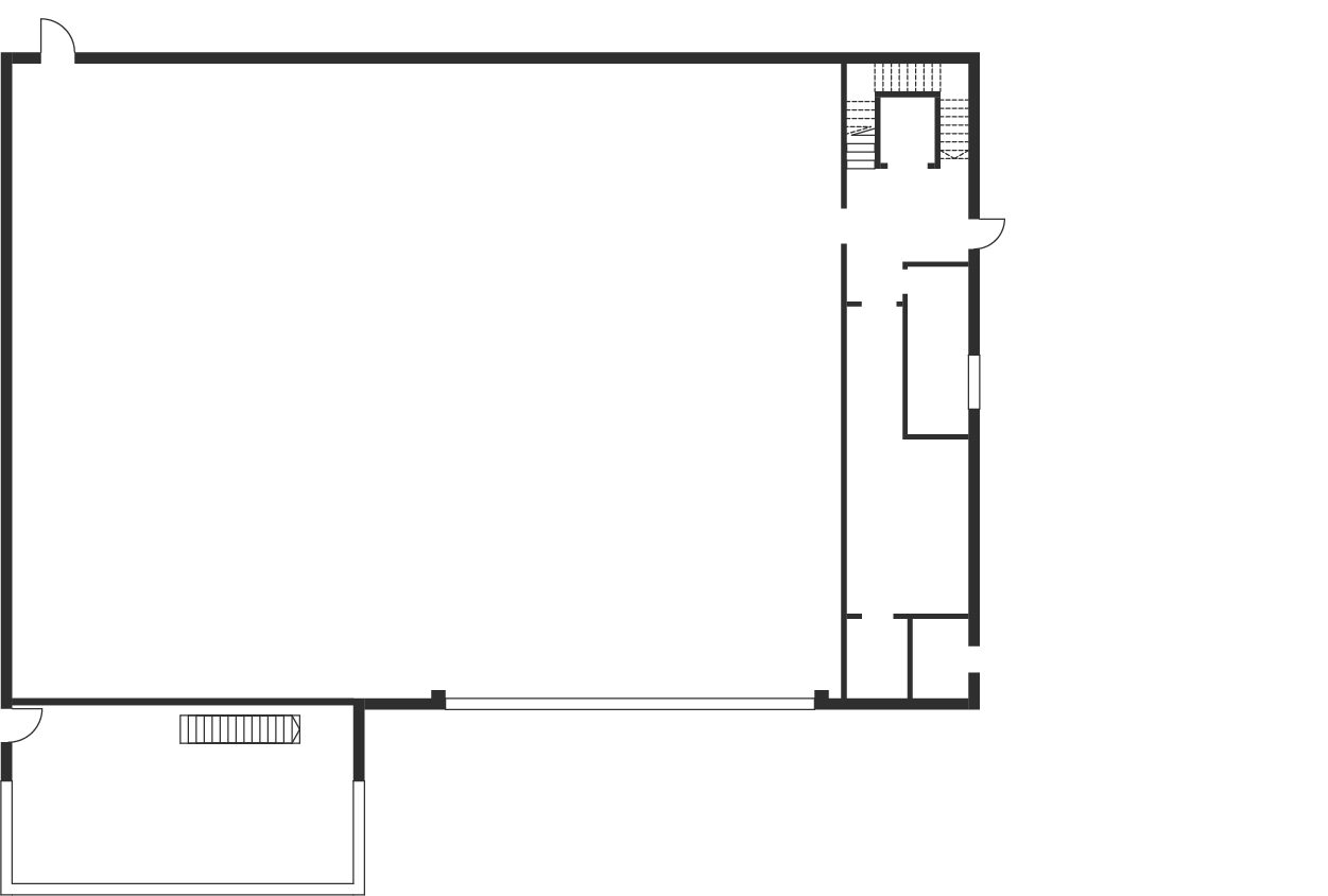
OG: Vorgehängte Fassade, EG: WU-Thermowand

Bäckerei Denzel in Vogt

Das Gebäude mit einer Nutzfläche von 1150 m² beherbergt eine Bäckerei und Filiale eines Drogeriemarktes.
Eine mögliche Umnutzung sollte mitgeplant werden. Umgesetzt wurde ein Hallengebäude mit Thermowänden für die raumbegrenzenden Flächen und einem weitgespannten Holztragwerk.
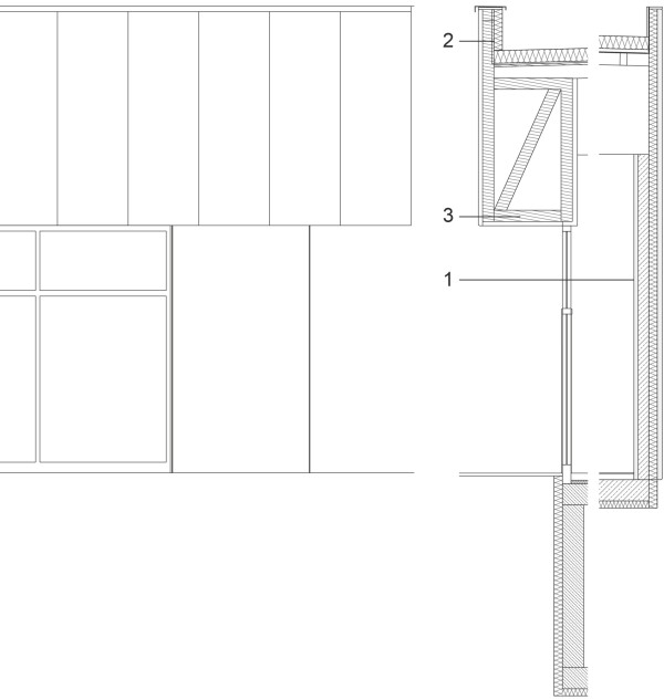
Die Brettschichtholzbinder liegen auf den Wandkronen auf, die hochgezogenen Vorsatzschalen schließen das Dachtragwerk in Wandebene ab.

Architekt: StudioMM, Wangen im Allgäu
Ort: Vogt
Baujahr: 2019

Ansicht
Grundriss
Schnitt
1. Thermowand
Außenschale
Dämmung
Kernbeton
Innenschale

2. Dachaufbau
Brettschichtholzbinder, Pfetten
Schalung / Dämmung
Polymerabdichtungsbahn

3. Vordach
Holzunterkonstruktion
bekleidet mit farbigen Aluminiumplatten
(geklebt, Alucobond)


Gestalten mit Thermowand-Elementen

Die von der Syspro-Gruppe entwickelten und im Jahr 1999 patentierten Thermowand-Elemente sind vorgefertigte Wandkonstruktionen mit werkseitig integrierter Kerndämmung. Sie bestehen aus dem konventionellen Doppelwandsystem mit Betonfertigteilplatten als Innen- und Außenschale sowie Vergussbeton. Syspro-Thermowände werden vornehmlich in der Konstruktion von Fassaden- und Außenwandbereichen von Gebäuden eingesetzt. Sie sind flexibel dimensionierbar, unkompliziert montierbar und können alle gewünschten energetischen Anforderungen an die Gebäudehülle, bis hin zum Niedriegstenergiehaus erfüllen.

Das Booklet „Gestalten mit Thermowand-Elementen“ richtet sich an Planer, Studierende, Architekten sowie Bauschaffende und ist als Download oder in Printform erhältlich.

Weitere Informationen und Unterlagen zum Bauen mit Thermowand-Elementen