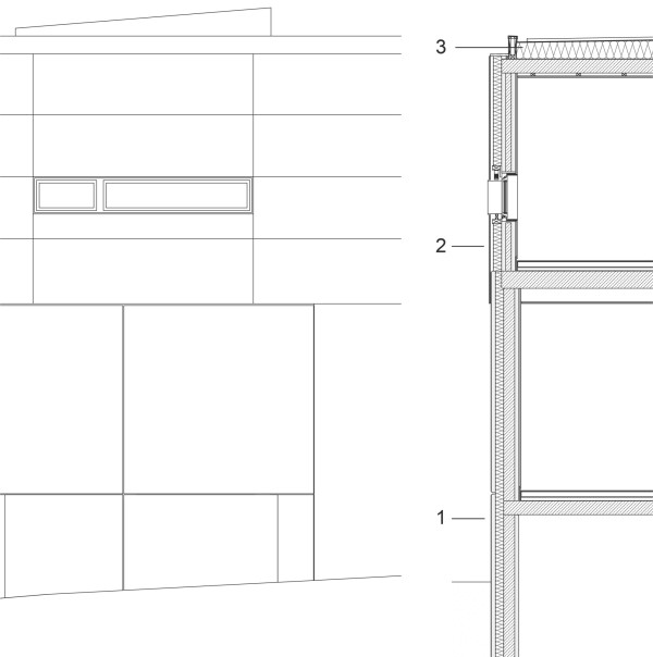
Fügung

Hybridkonstruktion
OG: Vorgehängte Fassade, EG: WU-Thermowand

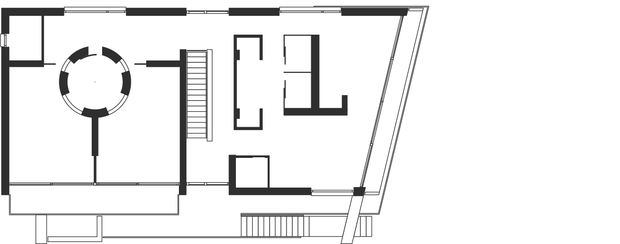
Wohnhaus an der Mosel

Das dreigeschossige Wohnhaus an der Mosel ist im UG und EG mit Thermowänden erbaut. Im OG ist die Wandkonstruktion mit mehrschaligen Filigranwandelementen als Wandbildner ausgeführt. Das UG, auf der Moselseite ebenerdig, ist als dichte Wanne mit WU WA1 Wandelementen ausgeführt. Kontrastierend betont die vorgehängte Fassade mit Holzwerkstoffplatten die Eigenständigkeit des Obergeschosses.

Architekt: von Canal architektur + generalplanung GmbH, Koblenz
Ort: Koblenz-Metternich
Baujahr: 2008/2009

Ansicht
Grundriss
Schnitt
1. WU WA1 Thermowand im UG
Außenschale
Dämmung
Kernbeton
Innenschale

2. Filigranwand mit Kernbeton
Dämmung
Hinterlüftung
Trespa-Platte Meteon

3. Splittschüttung auf Trennlage
Kunststofffolienbahn
Dämmung
Dampfsperre
StB-Decke


Gestalten mit Thermowand-Elementen

Die von der Syspro-Gruppe entwickelten und im Jahr 1999 patentierten Thermowand-Elemente sind vorgefertigte Wandkonstruktionen mit werkseitig integrierter Kerndämmung. Sie bestehen aus dem konventionellen Doppelwandsystem mit Betonfertigteilplatten als Innen- und Außenschale sowie Vergussbeton. Syspro-Thermowände werden vornehmlich in der Konstruktion von Fassaden- und Außenwandbereichen von Gebäuden eingesetzt. Sie sind flexibel dimensionierbar, unkompliziert montierbar und können alle gewünschten energetischen Anforderungen an die Gebäudehülle, bis hin zum Niedriegstenergiehaus erfüllen.

Das Booklet „Gestalten mit Thermowand-Elementen“ richtet sich an Planer, Studierende, Architekten sowie Bauschaffende und ist als Download oder in Printform erhältlich.

Weitere Informationen und Unterlagen zum Bauen mit Thermowand-Elementen