Fügung

Geschosshohe Öffnung zwischen
Wandelementen - Durchlaufende Attika

Büro- und Verwaltungsgebäude in Andernach

Die bodentiefen Fensteröffnungen rhythmisieren die Gebäudehülle des Verwaltungssitzes eines Beton- fertigteilherstellers. Die paarweise angeordneten Fenster werden mittels einer durchlaufenden Attika bzw. Deckenelements subtil zusammengefasst. Zwischen den benachbarten Fenstern bilden wandhohe Elemente feine Zäsuren.
Alle Betonelemente der Wandhülle sind in Thermowandkonstruktion umgesetzt.

Architekt: PLANFAKTUR ARCHITEKTEN BDA PartGmbB, Montabaur
Ort: Andernach
Baujahr: 2015

Ansicht
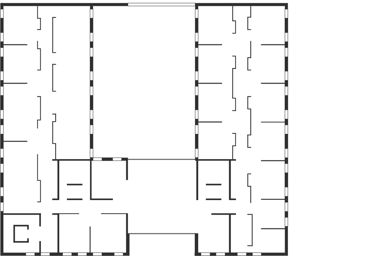
Grundriss
Schnitt
1. Thermowand
Außenschale
Dämmung
Kernbeton
Innenschale

2. StB-Decke
Hohlboden: faserverstärkte
Calciumsulfatplatte auf Stützfüßen
Parkettbelag

3. Sonnenschutz textil,
Rollo mit Führungsschiene
Aluminiumzarge, außen dreiseitig
Abdeckblech Aluminium
Fensterelement Aluminium
Brüstung Glas nach TRAV


Gestalten mit Thermowand-Elementen

Die von der Syspro-Gruppe entwickelten und im Jahr 1999 patentierten Thermowand-Elemente sind vorgefertigte Wandkonstruktionen mit werkseitig integrierter Kerndämmung. Sie bestehen aus dem konventionellen Doppelwandsystem mit Betonfertigteilplatten als Innen- und Außenschale sowie Vergussbeton. Syspro-Thermowände werden vornehmlich in der Konstruktion von Fassaden- und Außenwandbereichen von Gebäuden eingesetzt. Sie sind flexibel dimensionierbar, unkompliziert montierbar und können alle gewünschten energetischen Anforderungen an die Gebäudehülle, bis hin zum Niedriegstenergiehaus erfüllen.

Das Booklet „Gestalten mit Thermowand-Elementen“ richtet sich an Planer, Studierende, Architekten sowie Bauschaffende und ist als Download oder in Printform erhältlich.

Weitere Informationen und Unterlagen zum Bauen mit Thermowand-Elementen